The Garage, Main Street, Clogherhead, Co. Louth
€250,000
Retail Units
- Bathrooms
Description
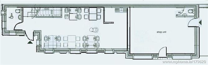
High profile corner garage, Full Planning permission for construction of a ground floor retail unit, and restaurant with reception and kitchen area at ground floor level and toilets , dining room and staff facilities at first floor level.
Would suit a builder that specialized in the business.
Close to village of Clogherhead.
Development Potential
Full Planning permission for construction of a ground floor retail unit, and restaurant with reception and kitchen area at ground floor level and toilets , dining room and staff facilities at first floor level.
Location
The junction of main street and harbour road,Clogherhead.
